Programme : Réhabilitation et extension d’une salle polyvalente
Maitrise d’ouvrage : Ville d’Auby
Statut : Livré (décembre 2024)
Période : 2022-2024
Localisation : Auby (59)
Budget : 250 000 €
Surface : 140 m²
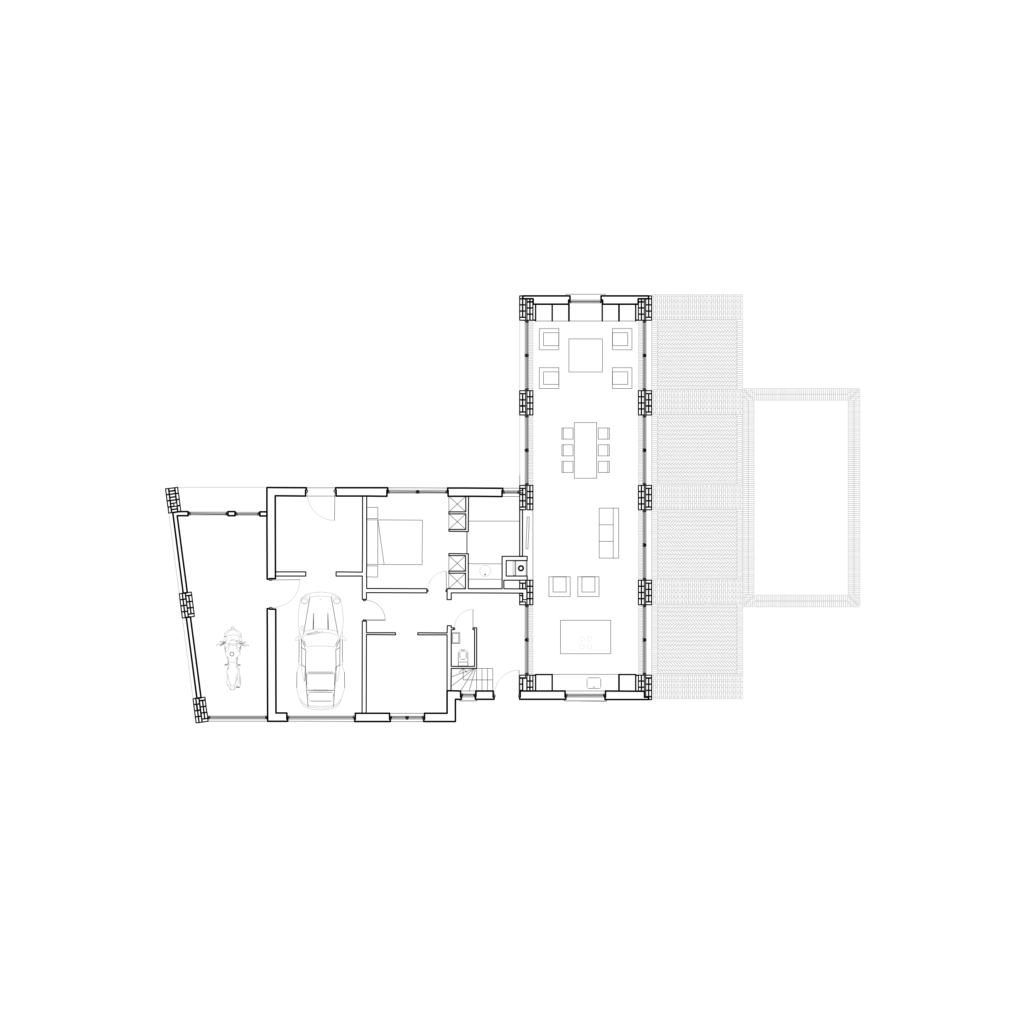
Le projet consiste en la transformation et la réhabilitation des espaces de vie de la Salle de la Corderie (bar, hall, sanitaires, etc.), ainsi qu’en la création d’une nouvelle salle polyvalente destinée à accueillir des réunions d’associations, des séances de travail ou encore des événements festifs.
Une structure périphérique en bois marque la séparation entre les volumes existants et l’espace public. Cette limite apporte une nouvelle identité à la Salle de la Corderie, assure une cohérence entre des volumes disparates et constitue les nouvelles conditions d’habitabilité du site.
L’extension, les aménagements extérieurs et les futurs agrandissements envisagés par la commune s’intègrent harmonieusement dans les espaces libres entre la structure et les volumes existants.
infos
fermer
Programme : Surélévation et restructuration d’un immeuble d’habitation
Maitrise d’ouvrage : Privé
Statut : Livré
Période : 2021-2023
Localisation : Lille (59)
Budget : –
Surface : 126 m²
Le projet consiste en la transformation d’un immeuble d’habitation de deux petits appartements évoluant chacun sur un niveau en un bâtiment constitué de deux triplex confortables.
Les qualités de l’immeuble existant résident entre autres en sa situation d’angle. Cette dernière évite des vis-à-vis importants et propose des vues dégagées sur un remarquable bâtiment témoin du passé industriel du quartier de Lille Moulins.
Le projet cherche à faire profiter les deux triplex de cette situation. Pour cela, deux escaliers à double révolution sont mis en place afin de permettre aux logements de s’alterner à l’angle d’un niveau à l’autre. Ils structurent l’habitat, articulent les différents espaces, et accompagnent les habitants de la cave au toit-terrasse.
Les combles existants ont été déposés pour laisser place à une surélévation en bois. Cette dernière est recouverte de tuiles vernissées couleur lie-de-vin lui permettant de s’intégrer subtilement aux toitures environnantes tout en témoignant de la culture constructive et matérielle du quartier.
Le projet s’intègre dans un vieux quartier ouvrier. Composé de longs îlots formés par de petites maisons mitoyennes de deux niveaux et combles ainsi que par de plus grandes habitations d’un niveau supplémentaire situées aux angles des îlots, celui-ci possède une forte identité. La surélévation – rajoutant un niveau à l’immeuble existant et marquant l’angle de l’îlot – fait rentrer le projet dans le dessin du quartier et partage alors avec celui-ci son histoire.
En collaboration avec Thomas Duhamel Architecte.
infos
fermer
Programme : Extension d’une maison individuelle
Maitrise d’ouvrage : Mr B
Statut : Livré
Période : 2018-2021
Localisation : Mesvin (Belgique)
Budget : 210 000 €
Surface : 48 m2
Cette transformation de maison a été une occasion d’exprimer les valeurs esthétiques, volumétriques et éthiques de la modalité constructive d’un projet d’architecture.
En effet, le projet exploite les propriétés immanentes de matériaux bruts et pérennes comme la pierre naturelle, la brique ou le béton et qui de part leur couleur, leur texture et leur mise en oeuvre régulée font apparaitre une spatialité qui leur est propre.
Ainsi, dans un ensemble de dix colonnes maçonnées et régulièrement espacées, supportant huit poutres en béton coulées en place et formant une galerie, s’aménage l’espace de vie de la maison. L’extension ainsi constituée qualifie le jardin et ce, en deux parties, l’une dédiée à la pratique de la nage, l’autre à la contemplation.
infos
fermer
Programme : Extension d’une maison individuelle et aménagement extérieur
Maitrise d’ouvrage : Mr et Mme N
Statut : Livré
Période : 2017-2019
Localisation : Vimy (62)
Budget : 78 500 €
Surface : 52 m2
Ce projet d’extension a été conçu en réaction contre le principe de la véranda. Généralement pensée comme une dépendance, celle-ci offre un espace servi dans une enveloppe à la technicité et à l’esthétique impensée tout en étant construite sans égard à son environnement.
En contrepied, l’extension est conçue comme un volume formellement indépendant de la maison existante, redéfinissant ainsi l’entièreté de la façade et générant une promenade depuis les espaces intérieurs de la maison vers le jardin. Cette intention répond à une particularité de la maison : malgré sa typologie pavillonnaire classique, elle ne présentait jusqu’alors aucun dispositif permettant de vivre le jardin situé en contrebas.
L’architecture se matérialise par le vocabulaire classique du socle, de la colonne et du couronnement. La composition est géométriquement ordonnée en trois cellules carrées identiques. Ces espaces constituent autant de transitions entre l’intérieur et l’extérieur : semblables dans leurs proportions et leurs matérialités, ils offrent néanmoins des variations subtiles dans leurs dispositifs architecturaux, organisant ainsi un parcours vers le jardin. La réinterprétation contemporaine du thème de la pergola permet d’assurer la flexibilité du dispositif et une réponse matérielle adaptée.
Photographies par Thomas Duhamel
infos
fermer
Programme : Aménagement extérieur
Maitrise d’ouvrage : Privé
Statut : Livré
Période : 2021
Localisation : Sainghin-en-Mélantois (59)
Budget : –
Surface : –
Une installation paysagère, sous la forme d’un portique en bois noir, fabrique une limite, un entre-deux articulant l’habitat avec son jardin. Le portique, s’implantant parallèlement à la maison existante, constitue une pièce à ciel ouvert d’un côté et caractérise le jardin de l’autre.
infos
fermer
Programme : Aménagement intérieur
Maitrise d’ouvrage : Privé
Statut : Livré
Période : 2021
Localisation : Sainghin-en-Mélantois (59)
Budget : –
Surface : –
Un mur fonctionnel en bois noir est installé. Tel le monolithe kubrickien, son existence interroge et intrigue. Par sa présence, il induit une hiérarchie et structure l’espace. Il prend sens en constituant une limite entre une pièce de jeux et un salon tout en matérialisant la lumière qu’il reçoit.
Réalisation : Victor Vergne – Ebéniste – www.victorvergne.com
infos
fermer
Programme : Réagencement d’un appartement
Maitrise d’ouvrage : Privé
Statut : Livré
Période : 2019
Localisation : Lille (59)
Budget : 45 000 € HT
Surface : 79 m²
infos
fermer
Programme : Extension de 5 classes, demi-pension et aménagements extérieurs.
Maitrise d’ouvrage : Département Pas-de-Calais
Statut : Concours
Période : 2020
Localisation : Laventie (62)
Budget : 3 600 000 €
Surface : 2092 m2
Au regard du jardin remarquable et de l’environnement architectural complexe, le projet présente une démarche engagée, respectueuse de l’histoire, axée sur la mise en œuvre d’une cohérence urbaine et paysagère globale.
Le projet s’inscrit dans une morphologie communale de petite échelle et présente alors une morphologie similaire. Son architecture est fragmentée, de faible hauteur et se caractérise principalement par un jeu de toitures tuiles en pente.
Le projet tisse des liens entre l’ancien et le contemporain par un travail de composition volumétrique et de proportions mais surtout par la mise en œuvre d’une galerie.
Cette dernière propose une articulation formelle et fonctionnelle entre les différents bâtiments du site. S’appuyant à la fois contre le bâti, le préau et le local casiers, ce dispositif assure une connexion couverte entre ces différentes fonctions tout en offrant à la cour de nouvelles limites claires. Perméable elle assure la transition entre le parvis d’entrée, la cour et les espaces extérieurs casiers et préau. Espace de convivialité ce nouveau lieu de vie ouvert sur la cour incite à la promenade et au jeu.
En collaboration avec De Alzua + et Ophélie Chassin Architecte.
infos
fermer
Programme : Extension de 7 classes, une crèche et espaces extra-scolaires
Maitrise d’ouvrage : Commune de Belfaux
Statut : Concours
Période : 2016
Localisation : Belfaux (Suisse)
Budget : 7 600 000 €
Surface : 1850 m2
Le projet est composé d’un socle en béton sur lequel reposent deux volumétries en bois, la crèche et l’école. Le socle définit une ligne qui traverse le site, dessine une limite à ce lieu désorganisé, relie les deux entrées principales du site en les caractérisant par deux espaces publiques et propose une circulation claire. Force dans le site, cette ligne directrice est perçue comme un tracé, une structure urbaine pour les prochaines extensions du complexe scolaire.
Sur cette ligne, les deux bâtiments en bois se font face et définissent alors la cour de l’école. Cœur identitaire du projet, cette pièce à ciel ouvert s’intègre dans la composition linéaire du projet tout en proposant une vue sur le centre ville et son église. Lieu du vivre ensemble, la cour est un espace public. Les enfants de la crèche observent et se familiarisent avec l’univers de l’école qu’ils devront bientôt découvrir, tandis que les écoliers contemplent la crèche avec la satisfaction de l’enfant qui se voit grandir.
La crèche est organisée autour d’un patio, espace de vie extérieur, et est composée afin de proposer aux enfants et au personnel éducatif un bâtiment à échelle familiale. Tout comme l’école, la crèche obéit à des règles de composition. En plus d’assurer une rationalité technique et un avantage économique, elles permettent de conférer un usage simple et évident aux deux bâtiments.
infos
fermer
Programme : Extension de 11 classes et espaces extra-scolaires
Maitrise d’ouvrage : Commune de Meinier
Statut : Concours
Période : 2017
Localisation : Meinier (Suisse)
Budget : 9 230 000 €
Surface : 2400 m2
Le projet adopte une logique d’insertion respectueuse du paysage de la ville en reprenant à la fois les limites de l’ilot et préservant la richesse du préau existant.
Cependant, l’articulation de l’extension avec l’existant n’est plus centralisée en un préau couvert mais longitudinalement sous la forme d’une stoa. Cette nouvelle qualification de la liaison couverte la fait entrer en résonance à une échelle territoriale. En effet, non-content de relier les deux cours existantes, cette liaison s’intègre aussi au tracé du réseau des chemins cantonaux de randonnée.
La logique de composition du plan se divise en trois parties linéaires et juxtaposées. Cette logique rationnelle, claire et efficace renforce la simplicité de la construction et propose une forte générosité et flexibilité programmatique.
Le projet est conçu principalement en béton. Le bois est utilisé pour les châssis de fenêtre, les éléments de charpente et l’ensemble du mobilier. La dialectique du bois et du béton apporte une atmosphère chaleureuse à une école subtilement intégrée à son environnement immédiat et lointain.
En collaboration avec Alexandre Lelièvre.
infos
fermer
Programme : Surélévation et réhabilitation d’un immeuble en 19 logements
Maitrise d’ouvrage : Fondation HBM Jean Dutoit
Statut : Concours
Période : 2017
Localisation : Genève (Suisse)
Budget : 6 200 000 €
Surface : 2121 m2
Le projet se dessine en retrait de l’alignement de la rue. Ce recul permet de limiter l’impact visuel du projet et de respecter la façade historique en affirmant sa présence à l’échelle de la ville tout en proposant des terrasses pour les appartements des étages supérieurs.
Le programme est organisé en couches successives : les chambres sont situées sur la rue au nord tandis que les espaces de vie profitent d’une exposition sud et du cœur d’îlot arboré.
Grâce à une logique de plan claire et une structure rationnelle, le plan du bâtiment est flexible. En permutant les espaces de sommeil d’un appartement à l’autre sur un même niveau, le nombre et la taille des typologies peuvent évoluer tout au long de la vie du bâtiment.
Afin de réutiliser au maximum les potentialités offertes par la structure existante, le projet déploie une ossature légère en acier. Il propose d’habiter une structure métallique blanche sur la cour et d’y installer l’ensemble des espaces de circulations verticales et horizontales ainsi que les espaces de vie extérieurs. Plusieurs coursives se dessinent donc permettant aux habitant de profiter du cœur d’îlot arboré depuis leurs terrasses mais aussi depuis la circulation commune.
Avec Alexandre Lelièvre.
infos
fermer
Programme : Extension de 3 chambres d’un corps de ferme
Maitrise d’ouvrage : Mr et Mme R
Statut : Etudes
Période : 2016-2017
Localisation : Livré-la-Touche (53)
Budget : 80 000 €
Surface : 60 m2
Dans la campagne Mayennaise, ce projet de transformation d’un membre de corps de ferme à usage d’habitation a pour programme l’implantation de trois chambres et d’un espace de vie pour enfants. Soucieux de la préservation des sols, le parti est pris de ne pas construire de surface de plancher supplémentaire.
L’hypothèse retenue est alors de se saisir du plancher du grenier, puis de remplacer la charpente existante par une structure adaptée à ce programme. Attentive aux qualités architecturales du site, cette dernière est construite selon une morphologie rurale réadaptée, à savoir deux plans inclinés entre deux pignons de la maison eux-mêmes surélevés. Par une structure régulée, l’étage est alors organisé en un espace de jeu et de travail, orienté sur la cour de la ferme, qui distribue les chambres tournées sur le paysage agricole.
infos
fermer
Programme : Aménagement d’un jardin et d’une cour
Maitrise d’ouvrage : Mr S et Mme L
Statut : Etudes
Période : 2017
Localisation : Lambersart (59)
Budget : 24 000 €
Surface : 82 m2
infos
fermer
Programme : Extension de la salle de séjour
Maitrise d’ouvrage : Mr et Mme B
Statut : Etudes
Période : 2018
Localisation : Croisilles (62)
Budget : 45 000 €
Surface : 39 m2
infos
fermer
Programme : Scénographie
Maitrise d’ouvrage : DISEGNO 2018
Statut : Réalisé
Période : 2018
Localisation : UCL LOCI Tournai (Belgique)
Budget : –
Surface : 540 m2
Quel est le lieu de la maîtrise de la conception architecturale ? Parmi les nombreuses réponses possibles, le dessin est incontournable. Le colloque et l’exposition DISEGNO 2018 (18/01 au 20/01/2018) ont visé à poursuivre le dialogue ouvert des deux dernières décennies à propos du rôle des divers dispositifs du dessin.
Les contributions à ce colloque ont la forme d’abstracts et/ou de dessins, et ont situé le passé, le présent ou le futur du dessin comme lieu d’exploration, de décision, de production, de maîtrise et d’incertitude dans la conception de l’architecture. Les contributions ont été attentives à lier théorie et pratique.
Le dessin est un ensemble de signes graphiques organisant une surface. La scénographie s’inspire de cette définition. Tandis que le dessin organise une surface, l’installation ordonne l’espace. A l’aide des différents éléments de mobiliers et se basant sur la table établie par Aire Mateus, l’espace est composé suivant un dispositif alliant rigueur organisationnelle et liberté compositionnelle. Le résultat obtenu génère de multiples situations, cheminements divers et vues croisées.
Conception du mobilier : Julien Boucq, Ophélie Chassin, Morgan Dimnet et Quentin Hatry.
Identité visuelle et graphisme : Ekta www.ekta.be
infos
fermer
Programme : Ateliers d’artistes, logements et hôtel
Maitrise d’ouvrage : ARCHmedium
Statut : Concours
Période : 2015
Localisation : Détroit (USA)
Budget : –
Surface : 38 000 m2
L’actuel bouillonnement créatif saisissant Détroit démontre que les artistes qui y ont élu domicile et installé leurs ateliers sont autonomes. Leurs actions révèlent une faculté d’adaptation importante leur permettant de façonner leur environnement. La Gare de Détroit ne pourra être conservée que si elle acquiert une nouvelle raison d’être. Les artistes ne pourront s’approprier l’édifice que s’ils prennent part à la conception et à la construction du projet.
A travers les nouvelles formes de travail de notre société contemporaine, la distinction entre vivre et travailler est de plus en plus floue. La vie professionnelle est plus instable. Le travail ne peut plus être contenu dans des typologies rigides et cela encore plus dans le cadre du travail créatif.
Le projet profite de l’espace neutre des chambres d’hôtel de la gare de Détroit et imagine des modes de vie et de travail artistique alternatifs au sein de la ville. Son ambition est de repenser l’habitat dans lequel ses formes, ses usages ainsi que ses modalités constructives convergent afin de proposer un lieu plus permissible. Ce dernier n’est plus régi par les formes traditionnelles de l’habitat, mais par la coopération entre les habitants artistes. La fabrication et la mise en place de modules d’habitation issus du recyclage des habitats abandonnés de Détroit proposent un nouveau cadre de vie permettant aux artistes de vivre ensemble et de partager leurs arts.
infos
fermer













































































































































































































